Apr

29

Wednesday

Museumsmittwoch: Erläuterungen zum neuen Reservoir Schachen

Museumsmittwoch: Erläuterungen zum neuen Reservoir Schachen Ortsmuseum Untersiggenthal, Kirchweg 4, 5417 Untersiggenthal Tickets

Credits: Katja Stücheli

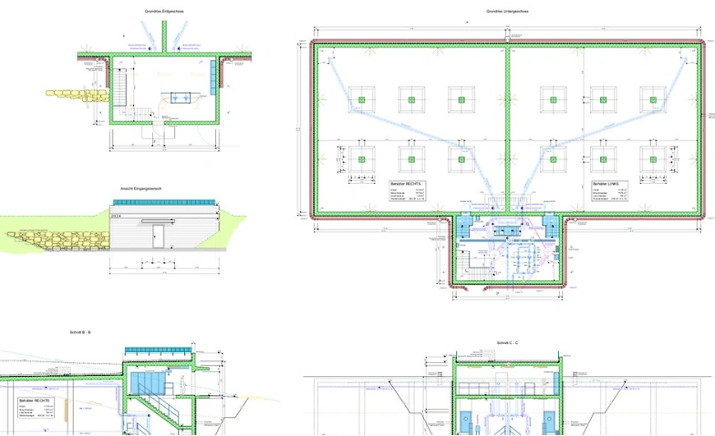
Bald wird der Spatenstich für das neue Reservoir Schachen in Untersiggenthal erfolgen. Es ist ein grosses und komplexes Bauwerk, welches von Michael Merkli, Bau und Planung der Gemeinde Untersiggenthal, betreut wird. An diesem Museumsmittwoch vom Mittwoch, 29. April um 18 Uhr im Ortsmuseum gibt Michael Merkli spannende Einblicke in die Planung des Reservoir Schachen. 

The event starts in
3 Days
16 h
9 min
5 s

Event organiser

Katja Stücheli

Total: XX.XX CHF

Info

Location:

Ortsmuseum Untersiggenthal, Kirchweg 4, Untersiggenthal, CH

Event organiser

Museumsmittwoch: Erläuterungen zum neuen Reservoir Schachen is organised by:

Katja Stücheli